Casa Prefabricada Wood Frame
MODELO S-104 - LLAVE EN MANO
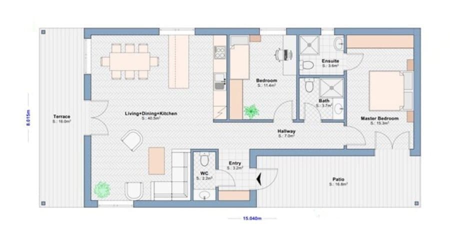
Modelo S-104
- 104 mts2
- 2 habitaciones
- 3 baños
- 150.800 + IVA
PRECIO LLAVE EN MANO
¿QUÉ INCLUYE Y QUE NO?
INCLUIDO
- Proyecto de obra: Arquitecto y Aparejador (dirección de obra)
- Cimentación: para terreno firme, losa de canto de 30cm
- Saneamiento: instalación de sistemas de agua y desagüe mediante tubería de P.V.C
- Estructura de la Vivienda: Mediante estructura de entramado ligero de madera de abeto de sección 120x40 mm revestida exteriormente con sistema Sate o similar con lana de roca+ tablero OSB en su cara interior.
- Interior de vivienda : revestida mediante placa de pladur pintada en tonos claros.
- Fontanería: Instalación de fontanería ACS y saneamiento completo para cuartos de baño, aseo, cocina y lavadero.
- Instalación Eléctrica: Instalación completa en interior de vivienda desde cuadro eléctrico, incluido mecanismos y luminarias led.
- Climatización: Partida Aerotermia sistema de conductos en todas las estancias salvo cocina y baños
- Cocina y Baños: Suministro y colocación de Baños completos, con sanitarios, ducha y muebles.
- Puertas: puertas de acceso a la vivienda blindada lacada en color a elegir o madera tanto en cara exterior e interior. Puerta de paso ciega, de una hoja.
- Ventanas: Carpintería de pvc con rotura de puente térmico y vidrio triple aislante, color blanco (otros colores a consultar)
- Fachadas: Revestimientos personalizables (Sate o similar). A definir color con acabados de fachada en monocapa, con detalles decorativos de porcelánico tamaño máximo 30x90 cm, o alistonado de madera tecnológica (composite)
- Cubierta: según diseño de vivienda, realizada mediante panel 50 cm de poliestireno extruido de alta densidad reforzada con acabado de tablero de OSB3 de 15mm en su cara exterior y 18 mm en su interior sobre vigas de madera de sección según planos de estructura.
NO INCLUIDO
- No incluido estudio geotécnico, ni trabajos exteriores de urbanización de parcela.
- No incluidas ICIO, tasas de ayuntamiento, contrataciones de acometida de agua y luz.
- No incluida la conexión desde la acometida de la instalación eléctrica, fontanería y saneamiento que no sea a pie de parcela
- NO incluidos electrodomésticos de la cocina (campana, vitrocerámica, lavavajillas, nevera...)

Con esta estructura se logra la Clasificación energética A
Compartir
Facebook
WhatsApp
LinkedIn
Email









